UİP-351018657 Plan İşlem Numaralı İmar Planı Değişikliği İlanı

CHP 11.08.2023 12:34:15 0
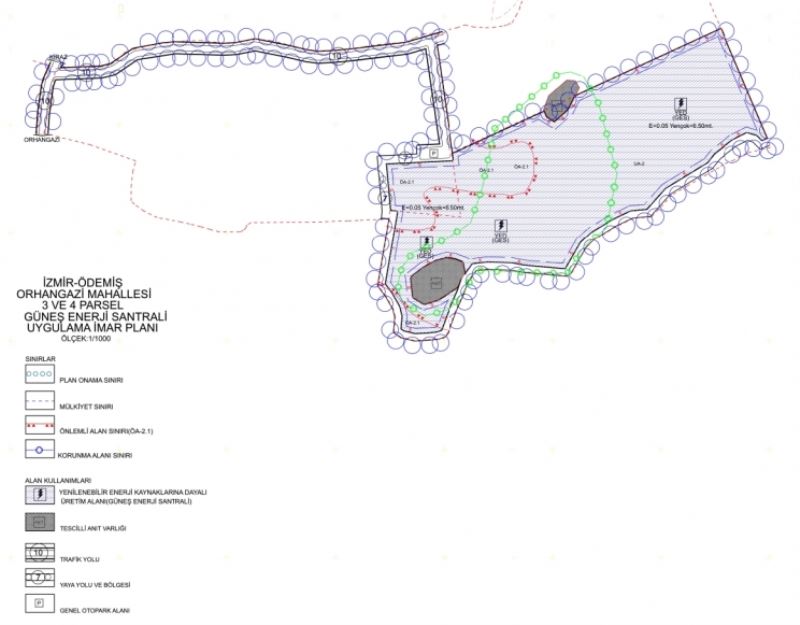
UİP-351018657 Plan İşlem Numaralı İmar Planı Değişikliği İlanı

DUYURU

Belediye Meclisimizin 08.06.2023 tarih ve 86 sayılı kararı ile uygun görülerek İzmir Büyükşehir Belediye Meclisinin 14.07.2023 tarih ve 773 sayılı kararı ile onaylanan; Orhangazi Mahallesi, 3 ve 4 parsel numaralı taşınmazlar üzerine Yenilenebilir Enerji Kaynaklarına Dayalı Üretim Alanı (Güneş Enerjisi Santrali) olarak belirlenmesine ilişkin UİP-351018657 Plan işlem numaralı 1/1000 ölçekli Uygulama İmar Planına ilişkin evraklar halkımızın tetkiki için 10.08.2023 ve 11.09.2023 tarihleri arasında Belediyemiz girişindeki ilan panosunda asılmış ve internet sayfasında ilan edilmektedir.


İzmir,Ödemiş Belediyesi

Çanakkale Yat Limanı'nda Seyir Terasları Yenileniyor

Başkan Demir'den 21 Ekim Dünya Gazeteciler Günü Mesajı

Avrupa Konseyi Kültür Rotaları Forumu Kapadokya'da Başladı

Antalya'da Cumhuriyetin 102. Yılına Özel 102 Sanatçılı Sergi

Antalya Büyükşehir Belediyesi'nin Ceviz Soyma Makineleri Üreticilere Destek Oluyor

Çanakkale Belediyesi Dijital Akademi Başvuruları Başladı

Yunusemre Belediyespor Sezonun İlk Galibiyetini Altay Karşısında Aldı

Karagöl Mahallesi'ne Modern Taziye Evi Geliyor

İBB Teknoloji Atölyeleri'nde Yeni Eğitim Dönemi Başladı

20.9°